Quadrilocale in vendita

Rivoli, Strada Maiasco - Cascine Vica
€ 239.000
Prezzo aggiornato
4 locali 4 locali
96 Mq 96 Mq
2 bagni 2 bagni

Quadrilocale in vendita

Rivoli, Strada Maiasco - Cascine Vica

Descrizione annuncio

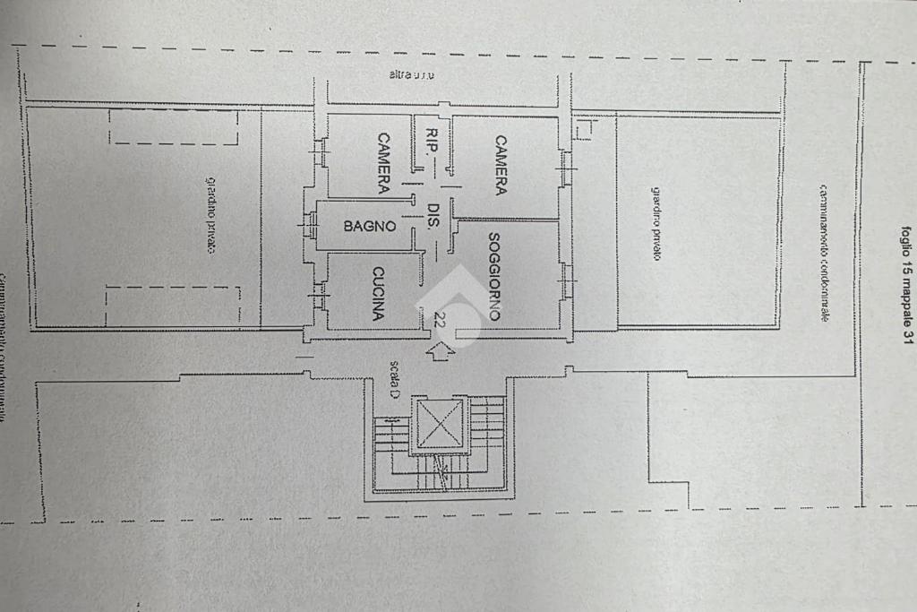
In zona Maiasco, a Rivoli, a pochi metri dai servizi primari, tangenziale e futura stazione Metropolitana, ma in un contesto totalmente privo di traffico; si trova un elegante e unico quadrilocale al piano terra, perfetto per chi cerca comfort e praticità. In una piccola palazzina di soli tre piani, l'immobile, edificato nel 2012, si distingue per i suoi ampi giardini privati di cui uno totalmente rifinito e ristrutturato a nuovo, accessibili da ogni ambiente della casa ad eccezzione del bagno, offrendo un'oasi di tranquillità e spazio all'aperto. La zona giorno è caratterizzata da un'ampia area open space living con cucina lineare, ideale per momenti di convivialità e relax. La proprietà comprende due camere da letto di cui una matrimoniale ed una singola, il bagno padronale finestrato ed un ulteriore locale ad uso ripostiglio/lavanderia con attacchi dell'acqua presenti, garantendo funzionalità e comodità. Completa la proprietà un comodo posto auto con accesso passo carraio automatico all'interno del condominio ad euro 5.000,00, rendendo questa soluzione abitativa particolarmente interessante per chi desidera vivere in un contesto signorile e moderno. Inoltre vi è anche la possibilità per chi volesse di un'autorimessa singola al prezzo di euro 20.000,00. Cantina compresa nel prezzo e possibilità acquisto mobile camera matrimoniale e tende estive esterne, compreso nel prezzo zanzariere e climatizzatore inverter Daikin. Spese ordinarie contenute e riscaldamento , acqua fredda/calda a consumo. Informazioni telefoniche guidate per visionare gli interni.

Mostra tutto

Nelle vicinanze

Trasporto pubblico Trasporto pubblico
stazione di Collegno
stazione di Collegno
2,3 Km
Alpignano
Alpignano
2,3 Km
Bruere N.92
Bruere N.92
240 m
Mondovi
Mondovi
250 m
Ricariche auto elettriche Ricariche auto elettriche
RIVOLI Via Pavia | ENELX FAST
1,0 Km
Mercatò Rivoli
1,2 Km
Collegno Corso Francia | EnelX
1,3 Km
Mercatò Rivoli | EnelX fast
1,4 Km
Tris Car Di Mina Giuseppe | EnelX
2,1 Km
Scuole Scuole
Scuola Primaria Salvador Allende
160 m
Scuola Secondaria di primo grado Primo Levi
460 m
Scuola Primaria Freinet
800 m
Scuole
840 m
Scuola Primaria "Gianni Rodari"
1,0 Km
Farmacia Farmacia
Santa Cristina
640 m
Parafarmacia Conad
650 m
Farmacia Comunale 9
690 m
Farmacia
810 m
Farmacia San Paolo
950 m
Ospedali Ospedali
IRM
2,2 Km
RSA Residenza al Castello
2,5 Km
Poliambulatorio ASL
2,5 Km
Guardia Medica
2,6 Km
Ospedale di Rivoli - Emergency
2,7 Km
Supermercati Supermercati
Conad
580 m
CRAI
1,0 Km
Mercatò
1,3 Km
Coop
1,9 Km
Crai
1,9 Km
Negozi Negozi
Negozi
760 m
I frutti del grano
1,9 Km
Magazine Stock House
2,0 Km
Pane & Company
2,0 Km
Emporio del pane
2,0 Km
Bar Bar
Florio
280 m
Bar
510 m
Lo Spuntino
910 m
Bar dell'amicizia
1,3 Km
IL Capolinea
1,4 Km
Ristoranti Ristoranti
La Coccinella
930 m
zhōng cān
1,0 Km
Sciabà
1,1 Km
La Casa di Bacco
1,7 Km
Jonica
1,8 Km
Mostra tutto

Caratteristiche

Rif.:
61176848
Piano:
Terra con giardino di 3 con ascensore
Totale piani:
3
Posti auto:
1
Terrazzi:
2
Camere da letto:
2
Mostra tutto
Prezzo Prezzo
€ 239.000
Prezzo box Prezzo box
€ 5.000
Rata mutuo Rata mutuo
€ 1.135 / mese
Spese annue Spese annue
€ 1.500
Proponi il tuo prezzoProponi il tuo prezzo

Classe Energetica

B
B
B
B
B
B
B
B
B
EP globale non rinnovabile:
93.74 kW h/m² anno
EP globale rinnovabile:
93.74 kW h/m² anno
EP invernale del fabbricato:
EP estiva del fabbricato:
Anno di costruzione:
2012
Riscaldamento:
Autonomo
Tipo impianto:
A radiatori
Tipo alimentazione:
Metano

Prezzo ridotto di €1 (5%%)

Ti interessa visionare l'immobile?

Fissa un appuntamento  Fissa un appuntamento

Richiedi informazioni

Clicca su Leggi per aprire l'informativa
* Questi campi sono obbligatori

Calcola il tuo mutuo

Semplice e senza impegno
Anticipo

( % )
Mutuo

( % )

pochi semplici passi

inserisci i tuoi dati
Questionario completato
Grazie per aver richiesto un appuntamento senza impegno con un nostro Consulente del Credito e Assicurativo.

Hai inserito correttamente tutti i dati necessari e a breve riceverai una e-mail con un link da convalidare per inviare i tuoi dati.
Affiliato
Immobiliare Cascine Vica Due Sas
Via Pavia , 2/c 10098 Rivoli (TO)

Il nostro staff


  • Gianluca Pucinotti
    Affiliato

  • Domenico Balzano
    Affiliato

  • Alessandro Rochira
    Collaboratore
Via Pavia , 2/c 10098 Rivoli (TO)
Zona: Rivoli - Cascine Vica Est
Mostra su mappa
Orari: Dal lunedì al sabato 9.00 - 12.30 e 15.00 - 20.00; sabato chiusura ore 18.00.
Affiliato
Immobiliare Cascine Vica Due Sas
Via Pavia , 2/c 10098 Rivoli (TO)

2026 Tecnocasa Franchising S.p.A. - P. IVA 08365160152 - Via Monte Bianco 60/A 20089 Rozzano (MI). Ogni agenzia ha un proprio titolare ed è autonoma. Privacy policy | Policy utilizzo | Cookie policy